[p. 128]
[p. 129]

C. VAN EESTEREN
ONTWERP VOOR EEN WOONHUIS AAN EEN RIVIER
1923
[p. 130]

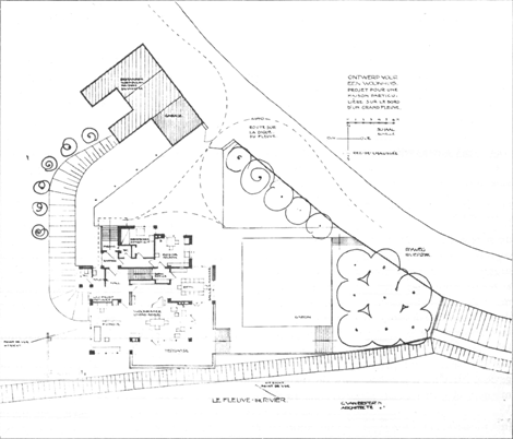
C. VAN EESTEREN
ONTWERP VAN EEN WOONHUIS AAN EEN RIVIER
1923
[p. 131]

C. VAN EESTEREN
ONTWERP VOOR EEN WOONHUIS AAN EEN RIVIER 1923
vorige


