Dr. Erna Meijer84
Wohnungsbau und Hausführung
Eine neue Bewegung ist, wie auf allen anderen Lebensgebieten, nun auch in Hausbau und Wohnungsgestaltung in Fluss gekommen; eine Bewegung, die vielleicht bisher noch zu sehr vom rein ästhetischen Standpunkt angesehen wurde, obgleich dieser der am wenigsten wichtige ist. Denn es liegt im Wesen dieses Bewegung, dass sie ganz in die Tiefe geht und letzte Dinge im Menschen anrührt und daraus ergibt sich, wie wir noch sehen werden, dass sich das ‘Ästhetische immer von selbst versteht.’
Unsere Zeit, unsere chaotische Gegenwart ist vor allem gekennzeichnet durch das Suchen; das Suchen nach neuen Lebensformen, denn die alten sind endlich abgenutzt, wir sind ihnen entwachsen und lassen sie hinter uns wie die Schlange ihre alte Haut. Das geht freilich nicht immer glatt und schmerzlos ab, zumal dann nicht, wenn das neue Gewand uns noch nicht, vorsorglich von Mutter Natur bereitet, schützend schon im gleichen Augenblick umfängt, wo wir das alte abstreifen; der ewig menschliche Fluch (oder Segen?) ist es eben, dass wir selbst um alles kämpfen müssen. So stehen wir Heutigen an einem Anfang, wir machen eine Wandlung unseres inneren Wesens durch und darum suchen wir nach neuen Lebensformen, nach neuem Ausdruck in Wissenschaften und Künsten, in Staats- und Gesellschaftsgestaltung und...im Allerpersönlichsten. Dies letzte hat nach aussen zwei Fenster: Kleidung und Wohnung. Kaum irgendwo tritt das Wesen des Menschen für den Kenner deutlicher in die Erscheinung als in der Wohnung.
Darum kein Wunder, wenn heute der Kampf um die neue Wohnung, das neue Haus mit aller Macht entbrennt und tiefer greift als das kunstgewerbliche Vorgeplänkel der letzten Jahrzehnte. Jetzt geht's ums Ganze; der neue Mensch sucht seine neue Haut! Nicht eine neue kleine Mode, nicht die ‘Geschmacksänderung’, die alle paar Jahre oder Jahrzehnte einen Wechsel wünscht, nichts Zufälliges und Gelegentliches ist dieser Ruf nach dem neuen Haus! Vielmehr der ernsteste Ausdruck unseres Wesens, die vielleicht wichtigste Erscheinungsform unseres heissen inneren Ringens um unsere eigene Erneuerung, um das neue Jahrtausend.
Die aus innerem Sehnen gespeiste Suche nach der dem heutigen Menschen entsprechenden Wohnung hat aber auch eine recht praktische Seite. ‘Rationalisierung’ ist Trumpf und nirgends so dringend als tatsächliche (nicht blos schlagwortmässige) Forderung zu erheben wie gerade im kleinsten ‘Betrieb’ unserer Volkswirtschaft, dem Haushalt, der mit seinem Umsatz von fast ? des Volksvermögens wichtig genug für das Ganze sein dürfte. Wie aber soll die Technik dieses Verbrauchs-Betriebes verbessert, wie der zu seiner Führung erforderliche Arbeitsaufwand verringert werden, wenn nicht das Haus von vornherein in seiner Gestalt weitgehend Rücksicht nimmt auf die Arbeit, die sich in ihm einmal abspielen soll? Das Haus, die Wohnung als Arbeitsstätte der Hausfrau, das ist die Zweite, die praktische Seite des Problems.
Viel zu wenig wird immer noch erkannt, dass diese zweite praktische Seite, den Ausgangspunkt bilden muss für die Lösung auch des geistigen Problems, denn das neue Haus kann niemals mit der praktischen Forderung nach reibungsloser, mit geringsten Energie-aufwand zu erledigender Hausführungsarbeit in Widerspruch stehen, da es sonst nie das Wohnbedürfnis des heutigen Menschen erfüllt. Wieviele Unsinnigkeiten würden wir uns bei den heute so zahlreichen Versuchen, zu neuen Bauformen zu kommen, ersparen, wenn mit eiserner Hartnäckigkeit daran festgehalten würde, dass die erste Voraussetzung für ein
neues Haus die Erfüllung des Wohnbedürfnisses, also auch seine Gestaltung als ideale Arbeitsstätte der Hausfrau ist! Dies müsste endlich - wie lange wird schon davon geredet, ohne dass Taten folgen! - zur glatten Selbstverständlichkeit werden, so dass dem nicht entsprechende Häuser überhaupt nicht mehr in die Diskussion einbezogen werden könnten. Denn der nach dem neuen Haus suchende Mensch unserer Zeit ist nicht nur der Mann, der ausser dem Haus seinem Beruf nachgeht, und zufrieden ist, wenn er zuhause knappe Stunden des Essens und Schlafens verbringen kann, sondern ebenso die Frau, die haupt- oder nebenberuflich an das Haus gebunden, von ihm in jeden Fall viel abhängiger ist als der Mann, die aber sowohl als Alleinstehende wie als Gefährtin des Mannes und Mutter der Kinder den Charakter unseres Zeitalters mindestens ebenso stark bestimmt wie der Mann selbst. Ob sie als vom Alltag gedrücktes Achenbrödel, als stets übellaunige Hysterika die aufgezwungene Bürde seufzend trägt und dadurch hinabzieht alle, die in ihrer Umgebung (meist nicht weniger seufzend) leben, oder ob sie mit sicherer Hand und frohen Augen ihre Arbeit überlegen meistert und darum, des eigenen wertvollen Tuns bewusst, stets frisch und unermüdet die Widrigkeiten des Tages überwindet, kurz, ob sie Sklavin ihrer Pflichten oder schöpferische Meisterin ist - das macht einen gewaltigen Unterschied für sie selbst, ihre Familie und damit für das Ganze des Volkes.
Arbeitsersparnis im Haus, Kraft - und Zeitgewinn bedeuten also viel wichtigeres als blos angenehme Zugaben, die wir uns dank unserer technischen Errungenschaften heute leisten können. Die Entlastung der Frau ist vielmehr ein zentrales Teilproblem der Wohnungsfrage überhaupt, und das ihm nicht gerecht werdende Haus kann keinen Anspruch machen, mitzuzählen. Erst wenn solche Einstellung in das Verantwortungsgefühl des Architekten und Bauherrn eindringt, erst dann können wir überhaupt hoffen, zu dem neuen Haus, unserer ‘neuen Haut’ zu gelangen. Als gestaltender Künstler muss und wird der Architekt noch hinausgehen über das rein praktische, sein Haus wird mehr erfüllen als blosse Notdurft unseres täglichen Seins, und diese wird darum als selbstverständlich mitbefriedigt werden mit Höherem, Geistigen, das weit darüber hinauswächst.
Solches hoffen wir von der Zukunft. Wie aber sieht die Gegenwart aus? Traurig genug, denn die meisten Architekten wissen noch gar nicht, dass es ausser einem direkt entlüfteten W.C. andere ‘Selbstverständlichkeiten’ gibt, die ebensolche allmenschliche Bedürfnisse erfüllen. Oder sind Essen und Schlafen und alles, was sie erst ermöglicht, nicht mindestens ebenso wichtig wie der Stoffwechsel? Wahrscheinlich hätte man das längst eingesehen, wenn der Mann selbst die dazu notwendigen Arbeiten verrichten müsste. Nur weil sie bisher hauptsächlich von der Frau erledigt zu werden pflegen, der Mann jedoch nur indirekt in Mitleidenschaft gezogen wird, konnte es bei dem heute eigentlich kaum noch fasslichen Zustand bleiben, dass für jede Hausarbeit ein Vielfaches an Kraft und Zeit aufgewendet wird von dem, was erforderlich wäre, wenn alle technischen Hilfsmittel herangezogen, wenn die Arbeitsmethoden selbst verbessert würden und wenn die Gestalt des Hauses von vornherein die günstigsten Möglichkeiten für die Durchführung dieser Verbesserungen schaffen würde.
Endlich aber beginnen die Frauen nun zu erwachen, - merkwürdigerweise auf diesem ihrem eigentlichsten Gebiet zuletzt - und bemühen sich die Arbeitsmethoden der Hausführung allmählich zu verbessern. Wie sollen sie in diesem Streben vorwärts kommen, wenn die Wohnung, in der sie leben der Durchführung aller dazu notwendigen Dinge den grössten Widerstand entgegensetzt?
Hierin muss also vor allem Wandel geschaffen werden und der Weg dazu läge klar genug vor uns, wenn man ihn nur sehen wollte! Planvolle Zusammenarbeit zwischen Architekt und Hausfrau müsste die Losung heissen. Planvoll! Dies sagt schon, dass es sich nicht etwa darum handeln kann, hier und da eine Laune der Frau, eine Liebhaberei, einen Gelegenheitseinfall zu verwirklichen. Vielmehr müsste eine ernsthafte gemeinsame Durcharbeitung des Hauses und aller seiner Einzelheiten inbezug auf die Forderungen, die die

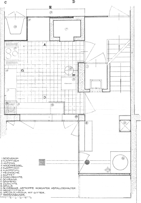
ENTWURF Dr. FRITZ BLOCK, HAMBURG
Frau im Interesse ihrer Arbeit stellen muss, erfolgen und daraus müssten sich Richtlinien gewinnen lassen, die von durchaus allgemeiner Gültigkeit und wandlungsfähig genug sein könnten, um auf die verschiedensten Einzelfälle gleich bei Aufstellung der Grundrisse angewendet zu werden. Ueberall da aber, wo Pläne für Neubauten bereits vorliegen, sollten Frauen als Sachverständige zugezogen werden - nur solche können dafür in Betracht kommen, die bereits in ihrem eigenen Haushalt sich entsprechend umgestellt haben - um noch in letzter Stunde aus den Plänen wenigstens die gröbsten Fehler herauszubringen. Denn wir können es uns einfach nicht leisten, bei dem verhältnismässig wenigen, was heute über-

ENTWURF Dr. FRITZ BLOCK, HAMBURG ERLÄUTERUNG ZUR NORMALTYPE
1) Gemauerte Nische für Gaderobe. - 2) Topf- und Spezereischrank, darüber Schrank für wenig gebrauchte Sachen, vom Flur aus zugänglich. - 3) Herd oder Gasherd. - 4) Aufwasch, darüber bis zur Fensterwand Hängeschrank, darunter Kochkiste auf Rollen. - 5) Entlüftbarer Speiseschrank, obere Platte gleichzeitig Arbeitstisch. - 5a) Tropfbrett, darüber hängend Tropfgestell. - 6) Besenkammer. - 7) Vorratskiste. - 8) Aufklappbarer Tisch. - 9) Schreibtisch. - 10) Esstisch. - 11) Kleiderschrank. - 12) Waschtisch. - 13) Kleiderbort.
haupt zu bauen möglich ist, auch noch traurigste Unzulänglichkeit zu verewigen, haben wir doch gerade genug zu schleppen an den zahlreichen unzweckmässigen Bauten des vorigen Jahrhunderts. Wieviel durch solche Zusammenarbeit noch sogar in letzter Stunde - je früher sie einsetzt, desto besser ist es - gerettet werden kann, wird nur der ermessen, der sie einmal miterlebt hat. Dass dabei keineswegs immer Verteuerungen, häufig im Gegenteil Ersparnisse die Folge sind und sich jedenfalls das meiste ohne Kostensteigerung machen lässt - erhöhter Bauaufwand ist meist nur die Folge der zu spät einsetzenden Beratung durch die Frau, deren berechtigte Wünsche nachträgliche Aenderungen möglich machen, - glaubt auch nur der, der sich durch das Miterleben zu überzeugen Gelegenheit hatte.
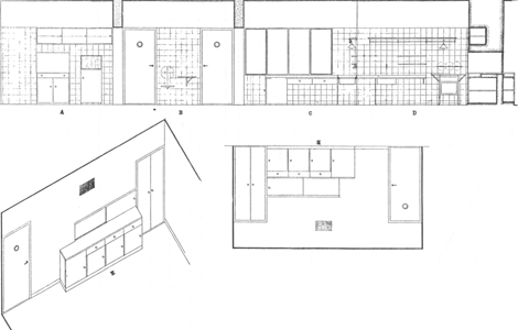
Immerhin lässt sich schon heute dafür ein so hervorragender Kronzeuge wie J.J.P. Oud anführen, der als einer von vielen nicht nur mit dem Wort, sondern auch mit der Tat für die enge Zusammenarbeit zwischen Hausfrau und Architekt eintritt. So schreibt er (Heft 2 ‘i 10’) u.a. ‘Der Architekt missachtet die kleinen Notwendigkeiten des täglichen Lebens, weil er sich über die Wünsche der Hausfrau erhaben dünkt.’ In seiner Häuserreihe für die Stuttgarter Werkbundausstellung 1927 ‘Die Wohnung’ trägt er seinerseits dieser Auffassung voll Rechnung, indem er dort alle berechtigten Hausfrauenwünsche nicht nur in der Küche, sondern im ganzen Haus weitgehend berücksichtigt. Betrachten wir darum seine Planung als geeignetes Beispiel etwas näher.
Wie der Grundriss zeigt ist die Aufteilung der Räume so wegersparend wie möglich. Für gute Belichtung und Luftzufuhr ist überall gesorgt, ebenso für direkte Eingänge aller Zimmer. Die ferner in allen Räumen vorhandenen Wandschränke verschiedenster Art ersparen

KÜCHE REIHENHAUS FÜR DIE WERKBUNDAUSSTELLUNG ‘DIE WOHNUNG’ STUTTGART 1927
ENTWURF: J.J.P. OUD

WOHNZIMMERSEITE
REIHENHAUS FÜR DIE WERKBUNDAUSSTELLUNG DIE ‘WOHNUNG’ STUTTGART 1927
KÜCHENWÄNDE MIT ANSCHLIESSENDER ZIMMERWAND
ENTWURF: J.J.P. OUD

BLICK IN DIE KÜCHE
REIHENHAUS WERKBUNDAUSSTELLUNG ‘DIE WOHNUNG’ STUTTGART 1927
ENTWURF J.J.P. OUD
nicht nur Zeit bei der Arbeit und helfen jedes Ding an seinen Platz zu haben, sondern sie machen auch erhebliche Möbelanschaffungen überflüssig.
Ganz besondere Beachtung verdienen mit Rücksicht auf die Hausfrau die Küche und andere Arbeitsräume, und hier hat Oud sich in jede Einzelheit vertieft, um wirklich allen Ansprüchen befriedigendes zu geben. Zunächst hat er der gut belichteten Küche einen geräumigen Hof angefügt, der es gestattet, manche sonst die Küche belastende Arbeit in diesem zu verrichten. Auch können Lieferanten gleich durch das Küchenfenster hier abgefertigt werden und der Abfallbehälter der Küche hat hier hinaus seine direkte Ausleerung, wodurch eine recht unangenehme tägliche Arbeit wegfällt. Der Garten des Hauses befindet sich auf der dem Hof entgegengesetzten Seite, so dass der Wohnteil von Haus und Garten ganz vom Arbeitsteil getrennt ist. Die ausgezeichnete Aufteilung der Küche selbst wird aus den Abbildungen deutlich. Da haben wir gleich an dem breiten, etwa nach Norden gehenden Küchenfenster den Arbeitstisch, an welchem auch sitzende Arbeit möglich ist. Linker Hand daneben befindet sich der nach aussen entlüftete Speiseschrank, rechts der Abfallbehälter, in den gleich die während der Arbeit entstehenden Abfälle geworfen werden können. Ueber ihn schiebt man das Abtropfbrett, (das sonst die Spülle überdeckt), sobald man mit dem Geschirrwaschen beginnt. Diese Arbeit kann man ebenfalls sitzend und besonders bequem ausführen wenn man den Fenster-Arbeitstisch zum Absetzen des schmutzigen Geschirrs verwendet, jedes Stück mit der linken Hand ergreift und mit derselben Hand (also ohne Handwechsel oder Uebergreifen!) auf die ebenfalls links befindliche Abtropfe stellt; diese ist übrigens leicht zum Spülbecken geneigt, so dass man mit den Heisswasserschlauch über das gewaschene Geschirr fahren kann und alles weitere Nachspülen erspart. Auch bei dieser Arbeit kann man sitzen, da unter der Spüle Platz genug für die Füsse vorhanden ist. Neben dem Herd hat man links Abstellmöglichkeiten, ferner eine Durchgabe zum Essraum und sogar einen Klapptisch und Klappstuhl zum Ausruhen oder Mahlzeit einnehmen eines etwaigen Hausangestellten. Besonders erfreulich ist in der Küche noch, dass die Durchgabe auch eine Glastüre hat, sodass die Mutter während der Arbeit die Kinder leicht in Wohnzimmer oder Garten, wenn sie die Holztür der Durchgabe offen lässt beobachten kann, ohne dass doch die Küchengerüche ins Zimmer dringen.
Die ganze verfügbare Wandfläche der Küche wird von Wandschränken eingenommen, so dass alles Handwerkszeug an der Stelle, wo es täglich gebraucht wird, wirklich ‘griffbereit’ und dabei doch staubsicher untergebracht werden kann.
Ergänzt wird die Küche durch die daneben gelegene Waschküche mit Wäscheaufzug, der in den darüber befindlichen querbelüftbaren Trockenboden mündet, in dem auch gleich für Bügelgelegenheit gesorgt ist. Ferner sind alle zum Aufräumen der Zimmer notwendigen Dinge im Besenraum vereinigt wo sich auch gleich der Schmutzausguss befindet. Die schmutzige Wäsche wird in Säcken aufbewahrt in einem kleinen Schrank oben: daneben der grosse-Leinwandschrank. Ein Kohleneinwurf befindet sich an der Strasse.
Wer könnte noch leugnen, dass in solchem Hause die arbeitende Frau ein neues Leben erwartet? Ein Leben, das sie nicht mehr zum Märtyrer der Familie, sondern frei macht von allem unnötigen Arbeitsballast, frei zu wichtigeren Dingen als dem Aufgehen im traurigen Kleinkram des Alltags! Voraussetzung dafür ist allerdings, dass sie solchem neuen Geist des Architekten auch ihrerseits mit neuem Geist zu folgen bereit ist und Lügen straft was uns Oud leider mit Recht von ihr gesagt hat: ‘Die Hausfrau scheint vorläufig noch lieber lange Zeit körperlich, als kurze Zeit geistig arbeiten zu wollen.’ Aber ich glaube bestimmt an den gesunden Sinn der Frau und daran, dass sie sich innerlich umstellen wird, wenn man ihr die nötige Unterstützung gewährt.
Eine besonders schwierige Frage bei Berücksichtigung der Hausfrauenwünsche ergibt sich schliesslich noch da, wo es sich nicht wie oben um ein Einfamilienhaus, sondern um eine Stockwerkswohnung handelt, die niemals Rücksicht auf eine bestimmte Familie mit einer dem Architekten bekannten Personenzusammensetzung nehmen kann und deshalb von
vornherein häufig für die betreffende Familie unzweckmässig sein muss. Ausserdem wandelt sich die Familie ja selbst im Laufe der Zeit, oft ohne dass die Wohnung gewechselt werden könnte.
Diesem Problem sucht ein anderer Plan abzuhelfen, den kürzlich Dipl.-Ing. Dr. Block, Hamburg, mit seiner ‘wandlungsfähigen Normaltype’ aufgestellt hat. Wie der Grundriss zeigt, ist dieser Wohnungstyp leicht veränderlich und gleich verwendbar, ob es sich um ein kinderloses Ehepaar in einfachen oder besseren Verhältnissen, um Eltern mit Kindern gleichen oder beiderlei Geschlechts in geringerer oder grösserer Zahl handelt. Sogar für die bisher so stiefmütterlich behandelten Ledigen fallen hierbei ausreichende Wohnungen ab, die einen ungeheuren Fortschritt gegenüber dem Wohnen bei der Vermieterin darstellen. Vom Möbeleinbau ist in diesem Fall bis auf die Küche abgesehen worden. Ihre Gestaltung ruht auf dem sehr richtigen Grundsatz, die häufig leider recht traurigen Wohnsitten zwangsweise zu verbessern. In diesem Fall, wird das dadurch erreicht, dass der Wohnteil der Küche - bei so beschränkten Verhältnissen kann die im allgemeinen überwundene Wohnküche als berechtigt anerkannt werden - eindeutig vom Arbeitsteil getrennt, und es auf diese Weise unmöglich wird, die Funktionen beider Raumteile zu verwischen, beispielsweise Kinder während der Arbeit in eigentlichen Kochteil zu haben oder etwa gar darin zu schlafen. (Bekanntlich gibt es heute kaum eine Wohnküche, in der nicht geschlafen wird!) Die in günstiger Anordnung Herd, Spüle, Vorrats-, Topf - und Geschirr - sowie nach aussen gelüfteten Speiseschrank enthaltende Kochnische ermöglicht der Hausfrau das Arbeiten ohne alle überflüssigen Wege und Bewegungen und der Zusammenhang mit dem Wohnteil zugleich die so notwendige Beaufsichtigung der spielenden oder Schularbeiten machenden Kinder. Beide Teile der Küche sind gut belüftet und die anstossende Loggia - im Hamburger Klima wären offene Balkons unbrauchbar - sowie die kleine Besenkammer entlasten sie soweit, dass der Arbeitsteil als vollkommen ausreichend bezeichnet werden kann.
Wir haben an obigen Beispielen gesehen, - auch weitere liessen sich noch anführen, so die bereites mehrfach geschilderte Frankfurter Einbauküche u.a.m. - dass die Wohnung als zweckmässige Arbeitsstätte der Hausfrau zu gestalten durchaus kein Ding der Unmöglichkeit ist. Es gehört dazu nur guter Wille und die gründliche, möglichst im frühsten Planungsstadium einsetzende sachverständige Beratung des Architekten durch hierfür geeignete Frauen. Gelingt es, solche planvolle Zusammenarbeit über das bisher Zufallsmässige hinaus zu einer systematischen zu machen, die überall in Anwendung kommen muss, so könnte in kurzer Zeit kein Wohnungsbau mehr zur Ausführung gelangen, der nicht wenigstens gewissen Mindestforderungen in dieser Richtung entspricht. Eine von den massgebenden Stellen unterstützte Aufklärung der Architekten und Bauherren könnte dann darüber hinaus dafür sorgen, dass bei einer grossen Zahl aller hergestellten Bauten noch erheblich mehr als nur die Mindestforderungen berücksichtigt werden.
Damit wäre das Wohnproblem, soweit es praktisch ist, seiner Lösung denkbar nahe gerückt. Und die geistige Seite? Ueberlassen wir die ruhig dem schaffenden Künstler. Er wird, wenn er wirklich ein schöpferischer Mensch ist, die oben am Beispiel angedeuteten Frauenforderungen in sich aufnehmen wie alle anderen technischen Bauelementen, die jede Zeit ihm bieten muss, bevor er aus ihnen in höchster Geistigkeit vollendetes Kunstwerk schaffen kann. Während aber der ohne künstlerische Potenzen arbeitende Architekt Häuser bauen wird, die lediglich ‘Institutionen zur Ueberwindung der Lebensnot’ (Nietzsches Ausdruck für unsere Bildungsanstalten) sind, - unsere heutigen Häuser sind noch lange nicht einmal soweit!....wird der wirkliche Künstler auch dies noch überwinden. Sein Haus wird nicht nur praktisch, nicht nur zweckmässig sein wie die ‘Wohnmaschine’: von seinem Haus wird man trotz seines ‘zweckmässigen Programms, das für ihn nur Ausgangspunkt war’, sagen müssen: ‘Du greifst mir ans Herz, tust mir in der Tiefe der Seele wohl, ich bin glücklich und ich sage: das ist schön, das ist Baukunst.’ (Le Corbusier)
vorige

