INTERNATIONALE REVUE
HOOFDREDACTIE:
ARTHUR MÜLLER LEHNING
REDAKTEUR VOOR
ARCHITEKTUUR: J.J.P. OUD
MUZIEK: WILLEM PIJPER
FILM EN FOTO: L. MOHOLY-NAGY
Nadruk verboden
Redactie, Rédaction, Editor
Administr., Publisher
Amsterdam, Leidsche Gracht 48
10 Nrs. Fl. 10.00, R.M. 20, Sh. 20, $ 4.5, Fr. suisse 22.
i 10
AMSTERDAM
N
15
× 1928

UNIVERSITY ANN ARBOR
At the top: The so-called architectural side
At the bottom: The back of the building
BOVEN:VOORGEVEL
ONDER: ACHTERGEVEL
These show clearly what the buildings are: educational factories, and shocked by this unpleasant revelation the University hurriedly camouflages the front
‘Please don't look round the corner; the poor girl is only dressed on the front’
America
Reflections by K. Lönberg Holm
De deensche architect K. Loenberg-Holm ging in 1923 naar Amerika. Hij zond mij de ‘Reflections’, waarvan hier een deel gepubliceerd wordt, met lange tusschenpoozen (de eerste waren in het duitsch gesteld, de latere in het engelsch).
Het is jammer, dat wij hier slechts enkele der interessante photo's, die hij ter toelichting medezond, kunnen afdrukken. Enkele ervan kent men wellicht, daar Mendelsohn er 17 van in zijn boek ‘Amerika’ publiceerde. Loenberg-Holm werkte in verschillende architectenbureaux hoofdzakelijk in Chicago en Detroit, en was eenigen tijd professor aan de Universiteit in Ann Arbor, Michigan (12.000 studenten). Ook Saarinnen was daar eenigen tijd en volgens een couranten-bericht zou ook Dr. Berlage daarheen gaan. De ervaringen van Loenberg-Holm waren zeer ongunstig, het onderwijs is er geheel gemechaniseerd. Hij ziet in de belangstelling voor Amerika - voor de amerikaansche productie-methoden - belangstelling voor een nieuw begrip van den TIJD als wezenlijk levenselement. De God van Amerika is ‘efficiency en wel bovenal ‘TIJD-efficiency’. Voor den europeaan ligt de waarde van een gebouw hoofdzakelijk in het tot stand gekomen resultaat, voor den amerikaan in het bouw-proces: ‘Hoe is het gedaan’. Behalve dat het met ‘efficiency’ gebouwd moet zijn, moet het er dan ook nog aardig uitzien. De europeaan, die van New-York naar den Stillen Oceaan reist, wordt getroffen door de uitgestrektheid. De belangstelling van den amerikaan, die hetzelfde doet, is voor alles gericht op een TIJD-record. Loenberg-Holm bespreekt verder de ontwikkelingsmogelijkheden der amerikaansche architectuur, heeft het over de tentoonstelling in Stuttgart, waarvan de plattegronden hem nog al conventioneel lijken enz.
De amerikaansche jeugd experimenteert met het huwelijk - in hetzelfde land, waar men in de gevangenis komt, als men de ‘evolutie-leer’ onderwijst.
Tot slot eenige staaltjes van amerikaansch leven: de dranksmokkelarij, de aflossing van een ploeg arbeiders, en van een architecten-bureau.
Hij typeert aldus het architecten-bureau:
‘Chef in het midden....10 uur....kijkt op zijn horloge....tikt met het potlood....teekenaars bij de ramen staan op....openen de vensters....gaan weer zitten....10 uur 15....chef tikt opnieuw....teekenaars staan op....sluiten de ramen....gaan weer zitten.’
?
Der dänische Architekt, K. Lönberg-Holm, ging im Jahre 1923 nach Amerika. Mit langen Zwischenpausen sandte er mir die ‘Reflections’, wovon hier ein Teil veröffentlicht wird. Die ersten waren in der deutschen, die späteren in der englischen Sprache abgefasst.
Es ist schade, dass wir hier nur einige wenige der sehr interessanten Photos die er zur Erlauterung mitschickte abdrucken können. Einige dürften bekannt sein, da Mendelsohn 17 von diesen Fotos in seinem Buche ‘Amerika’ veröffentlichte. Lönberg-Holm arbeitete in mehreren Architektenbüros: namentlich in Chicago und in Detroit, und war einige Zeit Professor an der Universität in Ann Arbor, Michigan (12.000 Studenten). Auch Saarinen war einige Zeit da tätig und nach einem Zeitungsbericht, sollte auch Dr. Berlage sich dahin begeben.
Die Erfahrungen von Lönberg-Holm waren äusserst ungünstig. Der Unterricht ist absolut mechanisiert. Er sieht in dem Interesse für Amerika - für die amerikanischen Produktionsmethoden - ein Interesse für den neuen ZEIT begriff als wesentliches Lebenselement. Der Gott Amerikas ist ‘Efficiency’ und zwar namentlich ‘ZEIT-Efficiency’.
Für den Europäer liegt der Wert eines Bauwerks hauptsächlich in dem zustandegekommenen Resultat, für den Amerikaner jedoch in dem Bauprozess: roie ist es gemacht?
Ausser der Tatsache, dass mit ‘Efficiency’ gebaut worden sein muss, soll es dann auch noch hübsch aussehen.
Der Europäer, der von Neuyork nach dem Stillen Ozean reist, ist von der Ausgedehntheit erschüttert. Das Interesse des Amerikaners, der dieselbe Reise unternimmt, ist hauptsächlich auf den ZEITrekord gerichtet.
Lönberg-Holm behandelt weiter die Entwickelungsmöglichkeiten der amerikanischen Architektur, spricht über die Stuttgarter Ausstellung, deren Grundrisse ihm ziemlich konventionell dünken, u.s.w. Die amerikanische Jugend experimentiert mit der Ehe, - in diesem selben Lande, in welchem man ins Gefängnis kommt, wenn man die ‘Evolutionslehre’ doziert.
Zum Schluss einige Querschnitte durch das amerikanische Leben: über den Alkoholschmuggel, - über die Ablösung einer Schicht Arbeiter, - über ein Architektenbüro.
Das letztere typiert er wie folgt:
‘Chef in der Mitte....10 Uhr....sieht auf seine Uhr....klopft mit seinem Bleistift....Zeichner bei den Fenstern erheben sich....öffnen die Fenster....setzen sich wieder....10.15....Chef klopft aufs neue mit dem Bleistift....Zeichner erheben sich....schliessen die Fenster....setzen sich wieder.’
?
L'architecte danois, K. Lönberg-Holm, partait en 1923 pour l'Amérique. Par intervalles assez longs, il m'envoyait ses ‘Reflections’ dont une partie sera publieé ici. Les premières étaient en allemand, les autres en anglais.
Il est bien dommage que nous ne puissions que publier quelques-unes de ces photograhies intéressantes qu'il m'a envoyées en même temps comme documentation.
Quand même, il est fort possible que vous connaissiez déjà quelques-unes de ces photographies, puisque Mendelsohn en publia 17 dans son livre ‘Amerika’.
Lönberg-Holm travailla dans plusieurs bureaux d'architecte, principalement à Chicago et à Detroit et pendant quelque temps il fut professeur à l'Université d'Ann Arbor, Michigan (12.000 étudiants). Saarinnen aussi fut là pendant quelque temps et selon une nouvelle de journal, Dr. Berlage se rendrait aussi là-bas.
Les expériences de Lönberg-Holm étaient des plus défavorables.
L'enseignement y est absolument mécanisé. Il entrevoit dans l'intérêt pour l'Amérique - pour les méthodes de production américaines - un intérêt pour une conception nouvelle du TEMPS, comme élement de vie essentiel. Le Dieu de l'Amérique, c'est ‘Efficiency’ et avant tout ‘Efficiency du TEMPS’. Pour un Européen la valeur d'un édifice, d'une construction s'exprime principalement en ce qui a été réalisé, pour l'Américain la valeur se manifeste dans le procès de bâtir: Comment a-t-on fait? Et, outre qu'une bâtisse doit être bâtie avec ‘efficiency’, il faut qu'elle ait un aspect agréable.
L'Européen qui fait le voyage de New-York au Pacifique est surtout frappé par l'étendue. L'intérêt de l'Américain qui fait le même voyage se porte surtout à un record de TEMPS.
Lönberg Holm traite de plus les possibilités d'évolution de l'architecture américaine, il parle de l'exposition à Stuttgart dont les plans lui semblent être un peu conventionnels.
La jeunesse américaine expérimente sur le mariage - dans ce même pays où l'on risque d'être mis en prison quand on enseigne ‘la théorie évolutionniste’. Finalement il donne quelques détails typant la vie américaine: la contrebande d'alcool, - une relève d'ouvriers, - un bureau d'architecte.
Il marque ainsi le bureau d'architecte:
‘Chef au milieu....10 heures....regarde sa montre....donne un petit coup sec de son crayon....les dessinateurs près des fenêtres se lèvent....ils ouvrent les fenêtres....ils se rasseyent....10.15....le chef donne un autre petit coup de son crayon....les dessinateurs se lèvent....ils ferment les fenêtres....ils se rasseyent de nouveau....’
C. VAN EESTEREN.
Juni 1925
Man wird wohl kaum verstehen, wie gross Saarinnens Einfluss hier gewesen ist. Das heisst - nur an die Oberfläche. Schon sind zwei Türme à la Saarinnen ausgeführt. Bekannt ist ‘The American Radiator Building’ in New-York. Saarinnens Studenten haben beinahe alle mit fabelhafter Fähigkeit ‘got his line’. Das alles ist nur Mode. Die grosse Tragödie ist, dass Architektur hier nur als Malerei gelehrt wird.
Die Studenten an der Universität in Ann Arbor (Mich.) haben 12 Stunden für die Pläne und dann zwei Wochen für ‘rendering’. Saarinnen lässt seine Studenten nur in Model und Plan arbeiten. Dass Architektur mehr ist als ein früher gesehenes Haus in ‘schönen Farben’ darzustellen, ist eine Idee, die den meisten absolut fremd ist. Mein Versuch hier mit ganz elementaren Konstruktionsprinzipien zu arbeiten und auf die Malerei zu verzichten hat erst Verblüffung, dann Interesse erregt.
Die amerikanischen Studenten sind sehr begabt, haben aber keine Selbständigkeit. Können nur mit Mühe selbständig denken. Der ganze Universitätsunterricht ist daran Schuld. Der ist ganz mechanisch, - ist tatsächlich nur ‘trade-school’.
April 1927
Americas greatest achievement so far has been in the field of pure ‘time-problems’. ‘Time is money’. America has sufficient space. The result has been a dominating appreciation of time. America has to ‘catchup’ with Europe.
Has to do in one century what Europe did in ten. Europe - on the other hand - always faced the opposite problem: space.
Time seemed eternal. The european architecture is a clear indication of this space-feeling. The architectural understanding you can find in Europe - the appreciation of form and space, is unknown in America. What appeals to the American in the European monuments is the historie element - time. Form means very little. What is going on in Europe at the present time - what is behind the interest for America - American production, American methods is - I believe - a new understanding of time as an essential element of life. Final aim: Time - Space.
America has only developped the ‘time-faculty’. The finest intelligence has been working with time-problems. Communications. Autos. Elevators. Railways. Moving-pictures. And first of all: Production. Efficiency: time-saving.
Time-study is a profession. And a highly paid profession. What the Peters church was for the European Renaissance is Henry Fords assembly line for America of to-day. The most perfect expression for a civilization whos God is efficiency. Detroit is the Mecca of this civilization. And the pilgers come from all over the world to meditate before this always moving line. American constructions - inspiring for Europeans - have got their form from the construction-methods - based on efficiency. The Europeans reenforced concrete constructions are solutions of space problems. The construction is in itself something new. The American frame- construction is very old as structural idea, New are only the erection methods.
The value of a building is for the European chiefly in the finished product. For the American chiefly in the building process. ‘How was it done?’ The architectural problems are: The efficient layout - the elevators - and the efficient erection. Then besides it has ‘to look nice’. And an architectural designer - who does not need any brain - is employed to dress the finishing product up - on the outside - in the prevailing fashion.
It seems to me that this over-development of the ‘time-faculty’ and the complete negligence of the sense for space and form can explain much of the American paradox. As Europe has developed a pure form and
space aestetics so has America developed a pure time aestitics. Speed as a value in itself. Away from its utilitarian value. Americans go autoriding - to speed. Time is the dominating factor in Jazz and movies. But you do not find any American sculptor- or painter of interest. Only European imitations.
The European who travels from New York to the Pacific enjoys the immense space. The American traveller enjoys the trip if he can cut down the record time.
The undeveloped possibilities.
The American architect has not yet realized that architecture is a time-space problem. A few European architects have. What is going to happen in America?
America is not any more without space-limits. The American civilization is naturally finding a space-expression. Getting form. But the cities based on efficiency - and a conventional desire for ‘nice-looking’ - are still chaotic. A city exists in space - and must be conceived thus to get a satisfactory form.
The young generation is revolting against the utilitarian efficiency phylosophy of their fathers. Or rather: efficiency being part of their nature they cannot see it as a final aim. This reaction has primarily been romantic. But you find a growing dissatisfaction and disillusion. Interesting in this connection is the present suicide epidemy among American University students. The present civilisation is onesided. One part of the human nature - the appreciation of form and space - has been left undeveloped. The awakening understanding of this has so far only resulted in a rather pathetic imitation of a dead form. Or in the best case - some of the recent New York structures - to very impressive cubic forms. You do not yet find any ‘time-space’ architecture. Any elementary solutions. The intellectual aristocracy is ‘anderswo engagiert’. The constructive energy is still chiefly concerned with the time-problems. But I believe that a very interesting development is only a question of short time.
It is easy for the European to criticise the American architectural form. But the buildings were really never intended to be form. The undeveloped possibilities in American

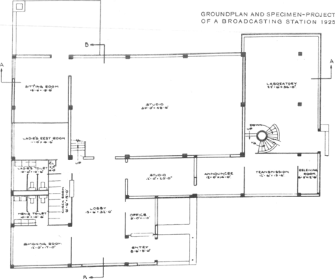
K. LOENBERG HOLM, DETROIT
model ontwerp radio-uitzendstation, 1925

K. LOENBERG HOLM, DETROIT
ONTWERP RADIO-UITZENDSTATION 1925 - PLATTE GROND

K. LOENBERG HOLM, DETROIT
MODEL ONTWERP RADIO-UITZENDSTATION 1925
Construction: Steel frame-work with concrete walls on expanded metal (cement gun)
Constructie: Raamwerk van staal waartegen aan weerszijden metaalweefsel bespoten met cement.
architecture mean something different to the European and the American.
Only recently have the American architects realized that a building exists as form. He has no tradition to help him to solve this problem - without losing his ‘time-achievement’. He turns to the old European ‘space-architecture’ and the result is false.
December 5th. '27
The Stuttgart exposition has evidently been a very important effort. Are the ideas of five years ago already conventionally agreed upon truths? The planideas seem rather conventional. They have been carried out with modern productionmethods - and up-to- date constructions, but seem to indicate that the social structure has not been radically changed. In other words: pure form and industrial methods can very well be applied to the existing society. Poelzig, Frank, Behrens a:o: are too negative. It is not enough just to remove the evidently meaningless elements of the old house. But the exposition as a whole is a tremendously interesting experiment - and an established fact that cannot be overlooked. How do our American professional brothers react? They cannot take it. It took them two years to digest the Paris Exposition. I do not think that this exposition meant much in Europe. It was however succesfully sold to America. Mixed with a heavy dose of German ‘Expressiqnismus’. Each ‘progressive’ architect is on quite familiar terms with ‘that modern stuff - you know’. Göttlicher Zig-Zag-Eins-Zwei- Drei and Parisian Beauty-parlor decoration. The associated Brickmanufacturers pretty soon saw the commercial possibilities. The architects office is flooded with books ou German and Dutch brickarchitecture. The modern material. You have to know the American copy-writers to be able to picture to yourself the lyric heights they reached in their salestalk. The artwriters - although not inspired by the cash-profit of the increased sale of bricks, did their part equally enthused. The architects surrendered without resistance. The ‘Expressiouismus’ may be dead, but the skeleton can still dance macabre.
Put in one part of Maya-architecture before you shake the cocktail - and then at last we have the real genuine American architecture. The designers are hurriedly sent to Europe to bring back the latest models. The
romantic reaction against the commercial everyday life finds itself in the expressionistic art of Europe.
You cannot then expect the American to accept the work and the ideas of the advanced group of architects in Europe. He has no understanding for space and form. He has however a romantic craving for beauty as a counterpoint to his ‘efficient’ life. That his purely commercial conception of efficiency might be the real trouble has not entered his mind. His efficiency is inefficient.
It is peculair to see old ideas - längst erledigt - live up on au entirely different background. Probably not more than a changing fad.
More interesting - and more promising is the new scale of values that already unconsciously has become characteristic for America. Vitality is more important than abstract ideas. The American youth's much talked of craving for motion is surplus of vitality.
Prohibition has become the greatest joke of the time. It is difficult, and no good job to stay sober.
The latest in matrimony: Companiated marriage. A union between young people who cannot afford, or do not want to establish their own household. A marriage contract for a certain number of years. Public teaching of birthcontrol. American youth experimenting with marriage. In the same country where you can be sent to prison for teaching evolution.
April 23th. '28
U.S. has at last gone ‘modernistic’ in such a way that an honest man wants to vomit just he hears the word. New York Department stores have window-trimmings ‘à la Stuttgart’ - an army of spinsters is lecturing on modernistic furniture (French Bordello Style) and the architectural magazines which a short time ago just had pity on Europe are now the parading grounds for an increasing number of natives who are bragging about the glorious discovery that a modern man should live in a modern house. Whereupon - with the tools of the old aestetics they set out to construct - or rather compose this modern house. All the old

AMERICAN FACTORY, GENUINELY BUILT AND ‘FAIR FACADE’
AMERIKAANSCHE FABRIEK, ZUIVER GEBOUWD: ‘EEN EERLIJKE STRAATWAND’

FACTORY U.S.A.
SPINNERIJ U.S.A.
‘OPEN’ EN ‘KLAAR’ ZOOALS WIJ ONZE GEBOUWEN WENSCHEN
stupidities. The busy interpreters turn every sound idea into a caricature. It is just a new fad. A new sensation.
Here is an illustration of real American life: Any street with a street car line in Detroit in the vicinity of one of the motor plants. Time: after midnight. The nightshift has just taken place. A few scattered individuals, civilians, waiting at the curb. Along the track a black column of workmen. Military formation. Three and three. All black. Faces alike. Same expression, utterly hopelessnes. No speaking. Just waiting. Street car. Doors slide open. Black column moves in. Three by three. Slow deliberate exactness of military funeral escort. Drop nickel - three by three - sit down, surplus hang in straps, the collective man on his way home.
Or this: Mechanical engineering office of well-known Detroit architectural firm. 40 men bent over drawingboards. Boss in center. 10 o'clock. Boss looks at watch. Taps table with pencil. Draftsmen along windows stand up, - open windows - sit down again. 10-15 Boss taps again. Draftsmen stand up. Close windows. Sit down again. No lost motion. The wooden soldiers of the Russian cabaret are the most popular entertainment when schoolchildern perform.
The papers are glorifying the ‘Bremen’ airmen. Ten years after the war. Most Americans have already realized that they were ‘used’ by propaganda during the war - and bear no illfeeling against the Germans - nor any illfeeling against the people who were responsible for the same propaganda. Rather the admiration you have for a masterpiece of machinery.
The gang war is on in Detroit. Machineguns barking from speeding-cars, exploding bombs - ‘pineapples’ - adds spice to an otherwise rather dull life. The gang-chieftains are as ‘romantic’ and ‘heroic’ as any ‘Götz von Berlichingen’. But it is of course safer to make the trip down the Rhine than down Detroit River at night. The liquor flows in from Canada - and the hijackers who prey on the bootleggers are terrorizing the underworld. The bootleggers cannot go to the police for help, they are involved in criminal activities themselves.
They must either pay the tribute to the ‘Raubritter’ of the highways - or fight it out with cold steel. The police is indifferent - as long as they only kill each other. But an innocent citizen gets in between - is found in the morgue - and an indignant public cries for revenge. Police-cleanup. Announcement from head of police: the underworld has been forced out of the city...tratratra goes the Thompson gun again- It is a great life. And there are no more Redskins to fight.
vorige

