[p. 92]

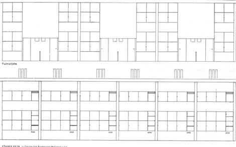
Ontwerp kleine woningen te Utrecht
Architect Rietveld

OMSCHRIJVING ZIE BLZ. 91

illustratie

[p. 93]



illustratie
Straatzijde met raamp:e voor boodschappen, brievenbus, enz.



illustratie
PERSPECTIEF van uit punt A



illustratie
SITUATIE Bestaande toestand



illustratie
Nieuwe toestand