INTERNATIONALE REVUE
HOOFDREDACTIE:
ARTHUR MÜLLER LEHNING
REDAKTEUR VOOR
ARCHITEKTUUR: J.J.P. OUD
MUZIEK: WILLEM PIJPER
FILM EN FOTO: L. MOHOLY-NAGY
Nadruk verboden
Redactie, Rédaction, Editor
Administr., Publisher
Amsterdam, Leidsche Gracht 48
10 Nrs. Fl. 10.00, R.M. 20, Sh. 20, $ 4.5, Fr. suisse 22.
i 10
AMSTERDAM
N
21-22
VI 1929
C. van Eesteren
Städtebau
De stad en het door den mensch gevormde landschap zijn uitdrukkingsvormen der menschelijke samenleving. Deze is op het oogenblik chaotisch. Coulissen kunnen dezen chaos hoogstens bedekken. De tegenwoordige mensch wil werkelijkheid, ook wanneer zij leelijk is.
De vormen van straten en pleinen behooren in de eerste plaats naar hun functie te worden onderzocht en geprojecteerd. De stadsaanleg moet ten opzichte van haar hygiënische waarde gecontroleerd worden, en indien er gebreken aanwezig zijn, moet naar de sociale of technische oorzaken gezocht worden. De coulissen zijn overbodig geworden.
?
Town and scenery shaped by man are forms of expression of human society. At present they are chaotic. Only side-scenes can hide them at best. The human being of to-day has the will to reality even when it is ugly.
The forms of streets and squares should be examined into, and projected according to their functions, first of all. The layingout of a town must be controlled with respect to its hygienic efficiency, and if shortcomings should be tracked down, the social or technical causes there of must be investigated into. Sidescenes, then, will have become superfluous.
?
La ville et le paysage créés par l'homme sont des formes d'expression de la société humaine. Pour le moment ils sont chaotiques. Seulement des coulisses peuvent camoufler ce chaos tout au plus. L'homme d'aujourd-hui veut la réalité, même quand elle est laide. En premier lieu il faut que les formes des rues et des places soient soumises à un examen rigourcux quant à leurs function et ensuite projectées sélon ce principe. La construction d'une ville doit être contrôlée par rapport à sa valeur hygiénique, et en cas qu'il y aît des imperfections, il est necessaire d'en rechercher les causes sociales et techniques. Les coulisses sont devenues superflues.
Die ersie städtebauliche Tat der primitiven Menschen war das bewusste Wählen der Stelle, wo sie sich niederlassen sollten.
Das Wissen und die Erfahrungen, worauf diese Wahl beruhte, bildete die Grundlage des Städtebaues.
Je nach dem Stand dieses Wissens und der kulturellen Bedingungen gab es überall und in jeder Zeit andere Stadttypen.
Schon Vitruv beschreibt in seinem ‘Baukunst’ Buch I ‘die Grundsätze, wonach die Lage der Stadt und ihre Formen bestimmt werden sollten’. Alberti gibt im 15. Jahrhundert in seinem ‘Zehn Bücher über die Baukunst’ ausführliche Vorschriften bezgl. des Städtebaues. Im 19. Jahrhundert wurden die Städte technisch und hygienisch immer mehr vollkommen: Gas - elektrisches Licht - Wasserleitung - Kanalisation - Verkehr, u.s.w. Die Sterbeziffern wurden immer niedriger. Die Städte wurden aber gleichzeitig immer hässlicher.
Einige der klugsten Architekten sahen dieses letztere ein und versuchten nun die ‘künstlerischen Grundsätze des Städtebaues’ (Sitte), auf zu treiben. Statt nun eine Analyse der modernen Stadt vorzunehmen fingen sie an, die historischen Städte zu analysieren und versuchten darauf aesthetische Gesetze aufzustellen.
Sie sahen nicht ein, dass sie damit nur eine Schauseite rekonstruiren konnten, d.h. Theater machten. Sie arbeiteten nur an der Schale, an der Haut der Stadt. Die Ursachen der Krankheit berührten sie nicht.

ARCH. G. RIETVELD
GESCHÄFTSHAUS WESEL NACHTAUFNAHME
So entstand, um eine ihrer Theorien zu nennen, die Theorie der Notwendigkeit des geschlossenen Stadtbildes. Resultat ‘Das Bayrische Viertel’ in Berlin, die sogenannten ‘Modernen Viertel’ in Amsterdam, und ähnliche in vielen anderen Städten. Der Kulissenstädtebau entstand. Diese kindliche Theorie wütet überall noch nach. Oft wird diese Kulisse dann sogar ‘modern’ aufgezogen.
Die Stadt und die von Menschen gestaltete Landschaft sind Ausdrucksformen der menschlichen Gesellschaft. Diese ist heute chaotisch. Kulissen können dieses Chaos höchstens verdecken. Der klarschauende heutige Mensch will Wirklichkeit, auch wenn sie hässlich ist. Er weiss, dass die Menschheit die Konsequenzen ihres eigenen Denkens und Wissens heute nicht beherrscht.
Auf diesen Erkenntnissen entwickelt sich nun Neues. Man fängt an über das Leben und Wohnen selbst, in der Stadt und auf dem Lande, nachzudenken. Die Formen der Strassen und Plätze werden an erster Stelle nach ihrer funktionellen Notwendigkeit diskutiert. Man versucht Spielflächen und Sportplätze richtig in der Stadt zu verteilen. Man fragt sich ab, zu welchem Minimum die Bebauungsdichte pro qkm. herabgehen darf, um eine elektrische Vorortbahn exploitieren zu können. Die Stadtanlage selbst wird auf ihren hygienischen Wert geprüft, und wenn Mängel da sind, spürt man die gesellschaftlichen oder technischen Ursachen auf. Es ist hauptsächlich Aufklärungsarbeit, die jetzt gemacht wird. Neue rationelle Stadtformen können so entstehen, man sieht wieder Möglichkeiten, um die Landschaft, auch die Industrielandschaft, harmonisch und bewohnbar zu gestalten. Die Kulissen sind überflüssig geworden.

Ir. S, VAN RAVESTEYN
BUREAU

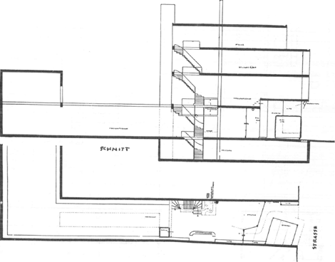
ARCH. G. RIETVELD
GESCHÄFTSHAUS WESEL
PLATTEGROND EN DOORSNEDE

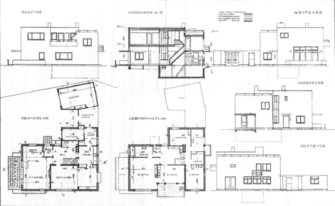
ARCH. P. ELLING
ONTWERP WOONHUIS HILVERSUM

ARCH P. ELLING
ONTWERP WOONHUIS HILVERSUM - PLATTE GRONDEN EN GEVELPROJECTIES

ARCH. P. ELLING
ONTWERP WOONHUIS HILVERSUM
vorige

